Tenant Improvements

Arizona, United States
Projects completed while working at George Oliver

For each renovated building, tenant improvement packages were developed to rebuild office and workspace interiors. This included demolition of existing layouts, space planning, new partitions, custom millwork, lighting design, and finishes selection. I was part of the team responsible for developing these tenant spaces, contributing to space planning, interior design coordination, and documentation across all buildings. Within each building, tenant spaces followed a consistent design standard in terms of color palette, millwork details, lighting fixtures, and material finishes to create a cohesive identity. At the same time, these standards were adapted between different buildings, allowing each project to have its own character while maintaining overall design consistency across the campus.

Space Planning Approach

Tenant improvement packages were developed for each renovated building to rebuild office and workspace interiors, including demolition, space planning, new partitions, lighting and ceiling design, interior finishes, and custom millwork. I contributed to space planning, interior coordination, and construction documentation across all buildings as part of the George Oliver Design team.

Tenant spaces followed a consistent design standard across the campus—covering color palette, millwork detailing, lighting fixtures, and material finishes—while allowing variations between buildings to create distinct identities within a cohesive design language.

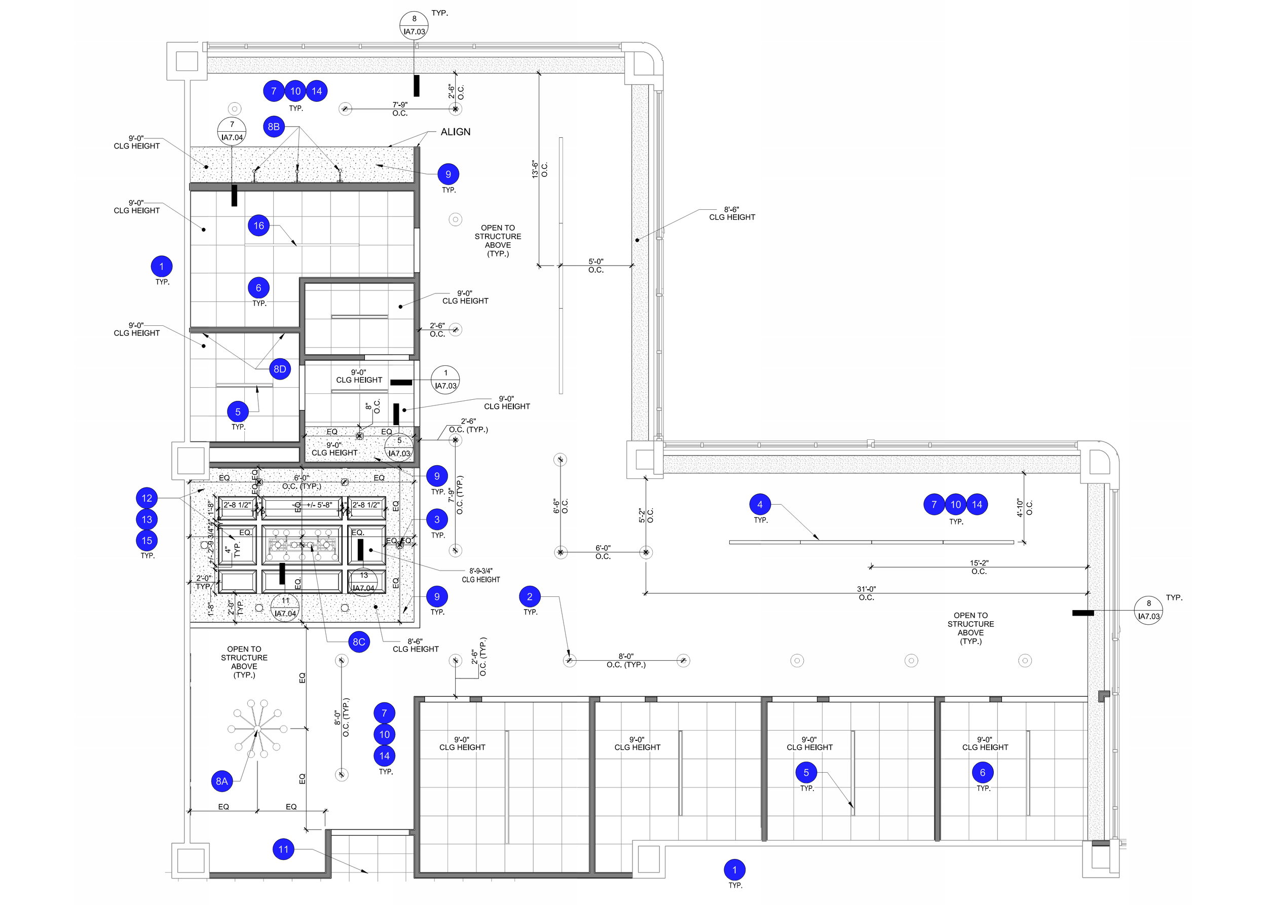
Detailed floor plans and reflected ceiling plans were developed to clearly communicate design intent and construction requirements, including wall types, finish schedules, keynotes, and coordinated lighting, mechanical, and sprinkler systems.

Demo Plan

Demo Reflected Ceiling Plan

Floor and Finish Plan

Reflected Ceiling Plan

Selected Tenant Improvement Suites

Bond - Suite 210

Second-floor tenant space overlooking the atrium, with perimeter open work areas and interior enclosed offices for daylight access and acoustic control. View Full Suite →

Bond - Suite 230

Second-floor perimeter tenant space with open work areas at exterior glazing and interior enclosed offices for daylight access and acoustic control. View Full Suite →

Bond - Industrious – First Floor Tenant Space

Located on the first floor of Bond and adjacent to the main atrium coffee bar, the Industrious tenant space was developed in collaboration with the Industrious team to deliver a flexible, hospitality-driven coworking environment aligned with the overall campus design language. View Full Suite →

Arbor Tempe – Suite 105 (Building D, First Floor)

First-floor tenant layout with perimeter open work zones and interior enclosed spaces for daylight access and acoustic control. View Full Suite →

Arbor Old Town – Suite 375

Third-floor workspace with perimeter daylight zones and interior enclosed spaces for privacy and efficiency. View Full Suite →

Previous
Previous

Arbor - Old Town