Bond - Suite 230

Phoenix, Arizona, United States
Project completed while working at George Oliver

Floor Plan Development

Demolition plan illustrating construction documentation development.

Floor and finish plan illustrating construction documentation development.

Design Elements

Feature Wall with Integrated Planter

Custom Millwork - Selected Examples

A custom feature wall system was designed to define tenant entry points and incorporate a dedicated tenant signage zone. The composition integrates paneled millwork, applied trim detailing, and a continuous built-in planter to introduce greenery and soften the architectural language. Panel proportions, trim profiles, and reveal details were carefully coordinated to maintain consistency with the overall design vocabulary of the project. The integrated planter adds depth and visual interest while creating a welcoming threshold into each tenant space.

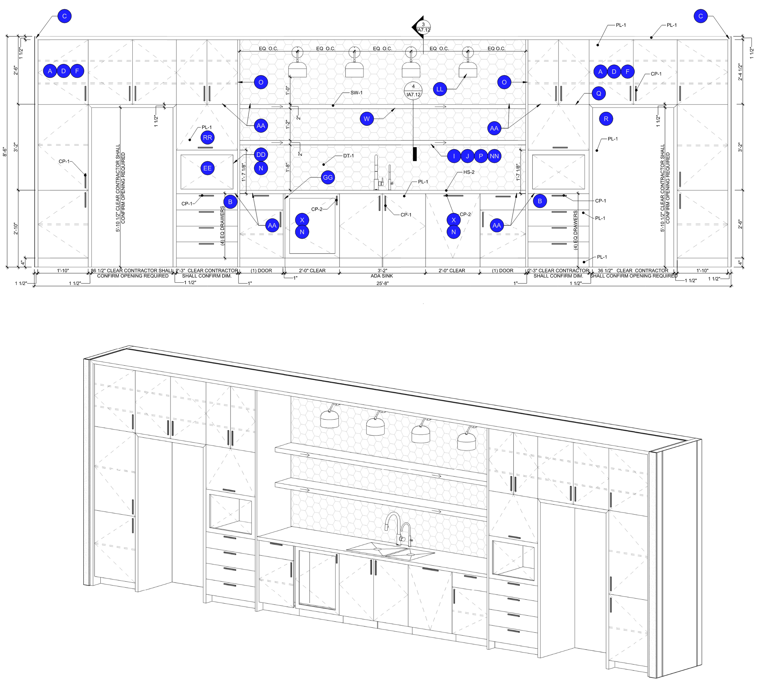
Break Area

Standardized break area and island millwork systems were developed for tenant suites at Bond to provide functional kitchenette and gathering spaces. The drawings illustrate keynotes used to communicate materiality, dimensions, and construction intent to the general contractor. While the overall design language and finishes remain consistent across all suites, cabinet layouts, island sizes, and configurations vary from suite to suite based on space, tenant needs, and layout requirements. Lighting and backsplash selections are adapted per tenant, while maintaining a cohesive project-wide aesthetic.

Lounge/ Open Collaboration

A custom millwork feature was designed for the lounge and open collaboration area to provide integrated shelving, media display, and spatial definition. The system combines vertical steel posts, floating shelves, and a central media zone to create a functional and visually anchored gathering element.

Detailed drawings and keynotes were developed to communicate construction intent, structural coordination, and material specifications to the general contractor and fabricator.