Suite 105 - Arbor

Tempe, Arizona, United States
Project completed while working at George Oliver

Floor Plan Development

Demolition plan, demolition reflected ceiling plan, floor and finish plan and reflected ceiling plan illustrating construction documentation development.

Design Elements

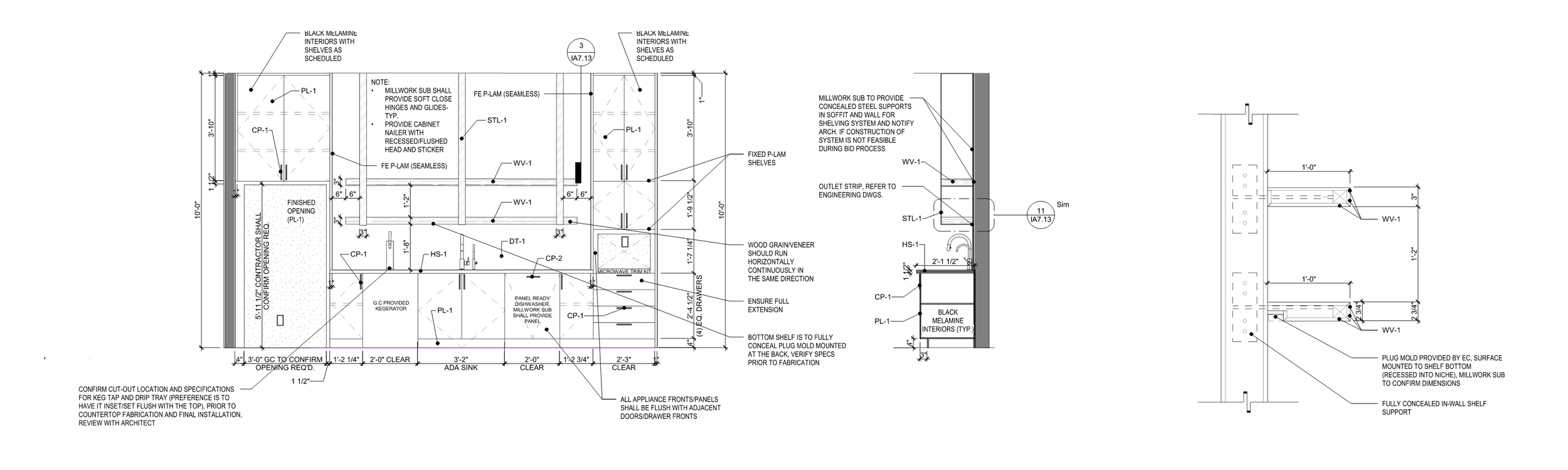
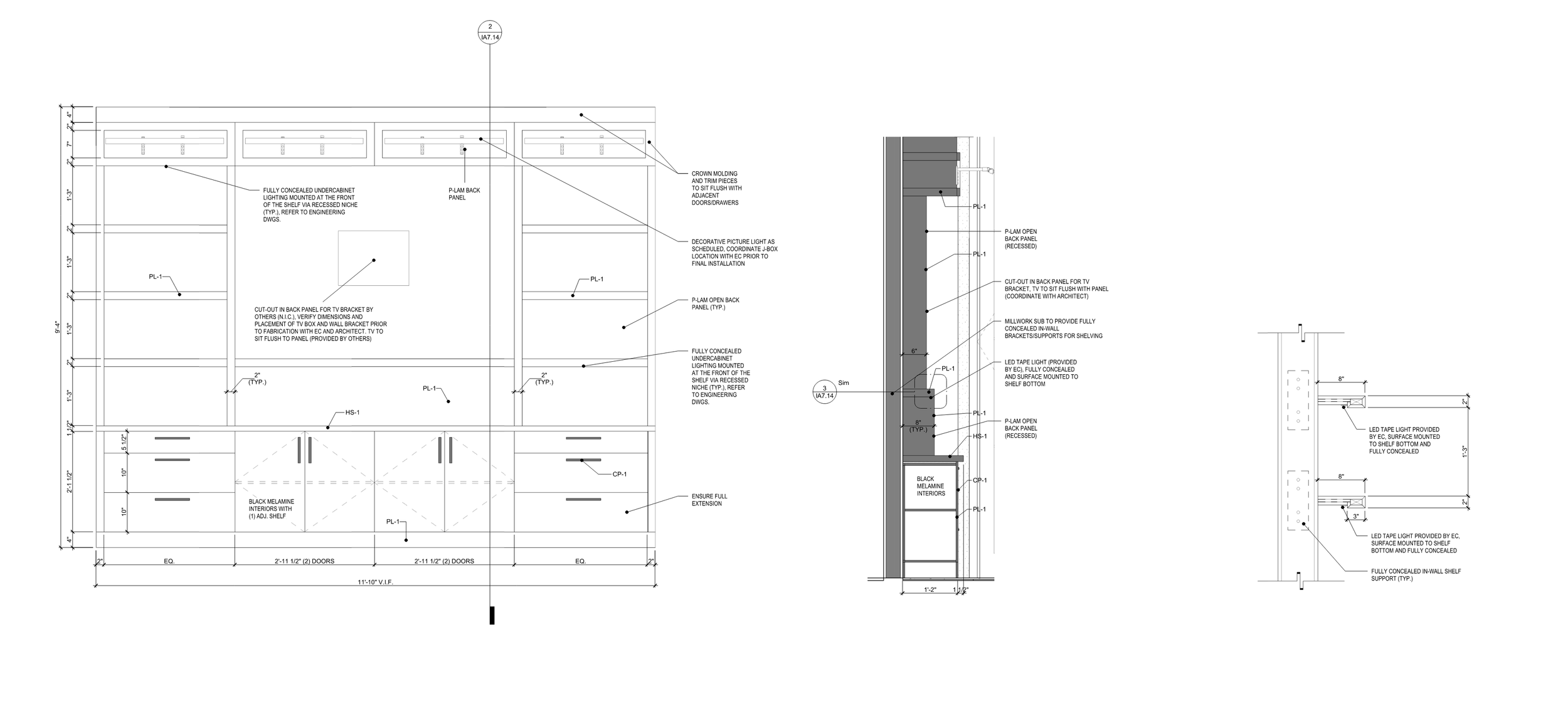
Custom Millwork - Selected Examples

Conference Room Millwork

Open Collaboration Area Millwork

Break Area Millwork

Selected Construction Details

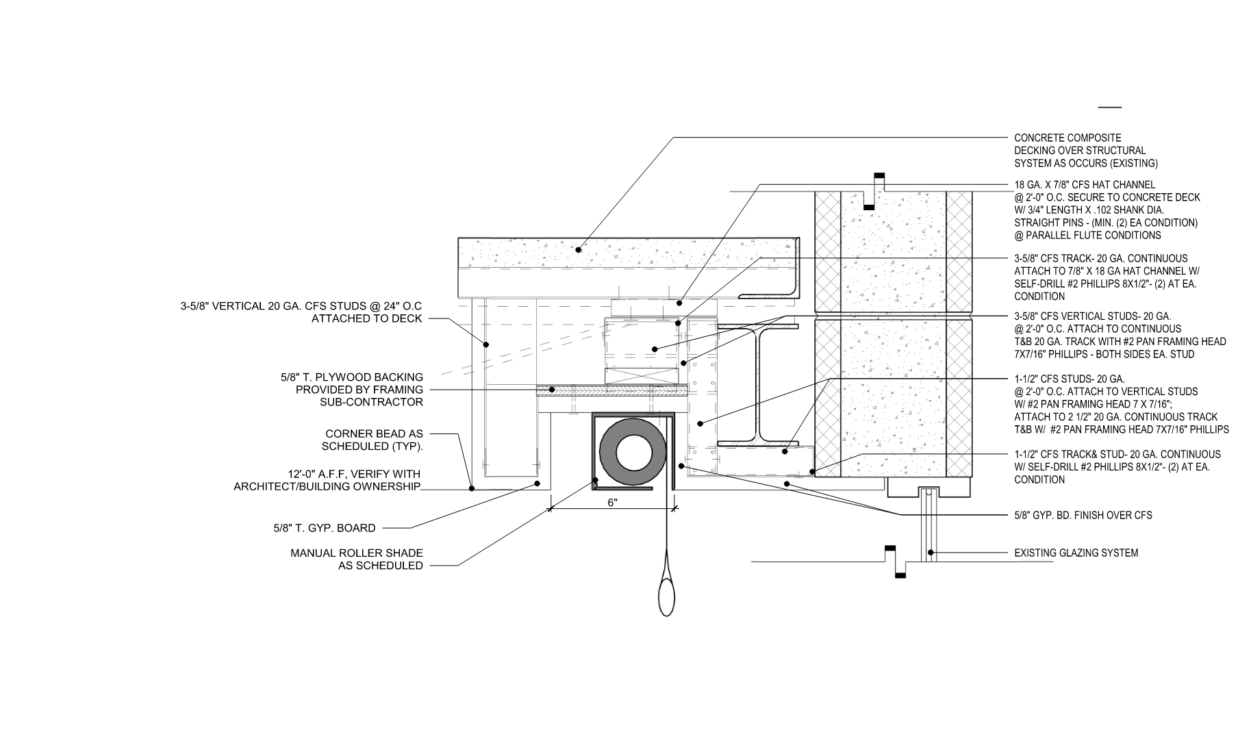
Roller Shade Pocket Detail

This recessed roller shade pocket was developed in response to existing site conditions. The detail coordinates the shade housing within the ceiling and soffit assembly while aligning with the existing glazing system and structural deck to maintain a clean and integrated window head condition.

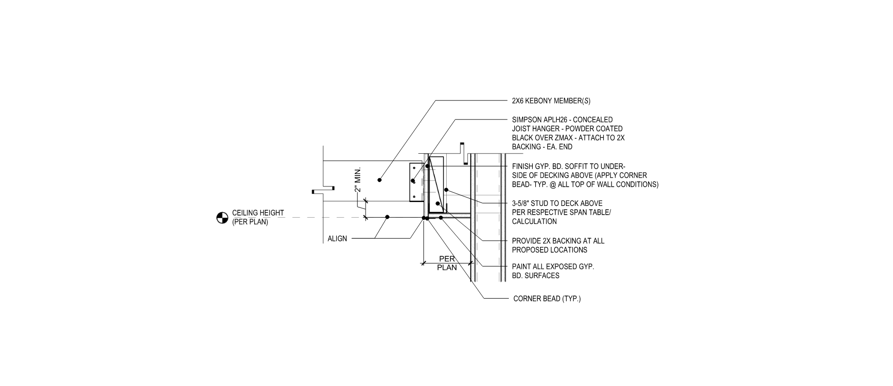
Conference Room Ceiling Detail – Kebony

The conference room ceiling was detailed with exposed Kebony wood members to introduce warmth and material contrast within the space. The detail illustrates the attachment, backing, and finish coordination required to integrate the wood ceiling with adjacent gypsum assemblies.