Arbor - Old Town

Scottsdale, Arizona, United States
Project completed while working at George Oliver

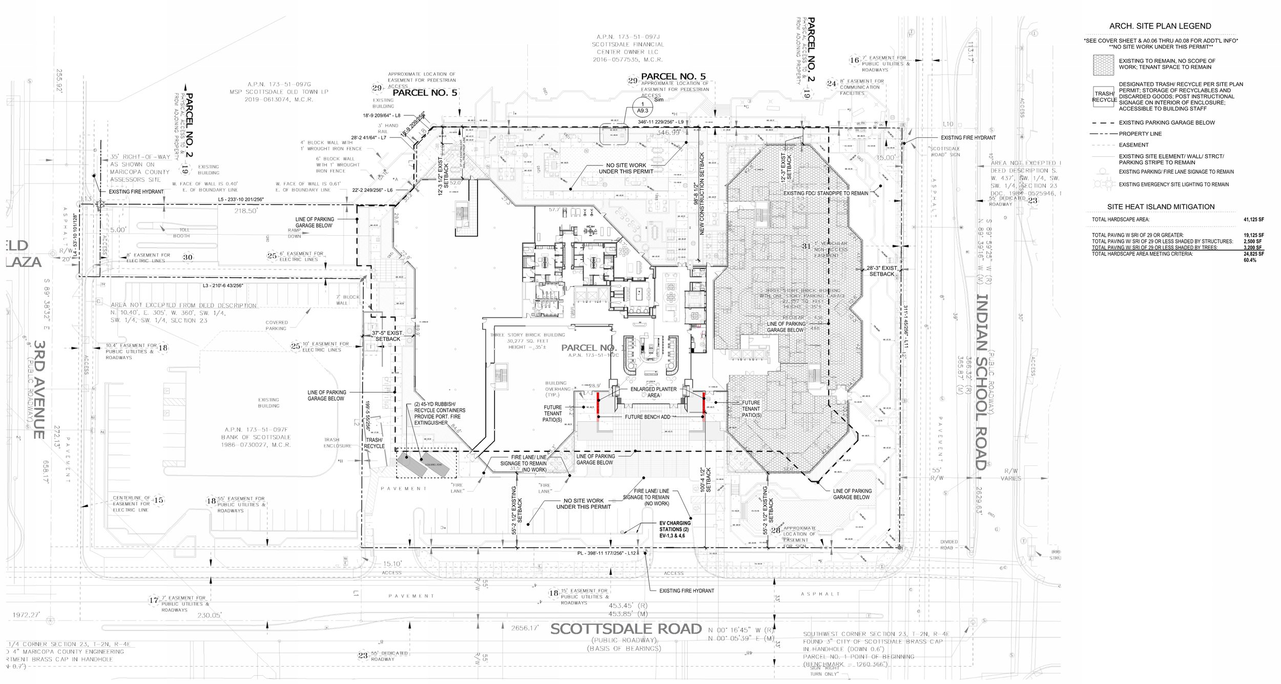
Arbor Old Town is a renovation project connecting two existing office buildings through a newly designed central piazza. The project reactivated the first floors and transformed the space between the buildings into a shared public realm that encourages interaction and connectivity.

The piazza was designed as an inclusive landscape with terraced planters, integrated seating, shaded gathering areas, and clear circulation paths, creating an outdoor environment for daily use, informal meetings, and events. Landscape, lighting, and material selections were coordinated to establish a cohesive site identity.

In addition to base building renovations, multiple tenant improvement packages were developed across both buildings to support flexible workplace environments aligned with the overall design language.

The project extends the design intent of Arbor Tempe, translating a people-focused workplace campus concept into a new urban context through activated ground floors and indoor–outdoor connections.

Vicinity Map

Site Plan

Floor Plan Development

The floor plans for both projects were developed to create a clear organizational structure for tenant spaces, shared amenities, and building services. At the heart of each building, a double-height lobby acts as the main arrival and gathering space, establishing strong visual and physical connections across multiple levels. Arched openings frame views into surrounding amenity areas and soften transitions between public and tenant zones, reinforcing intuitive wayfinding and spatial continuity.

Throughout the interior spaces, integrated planters and greenery were strategically placed to introduce natural elements into the workplace environment. This approach carries forward the Arbor design concept, where architecture and landscape are intentionally blended to create spaces that feel warm, human, and connected to nature. Material and finish selections further support this vision. Warm wood surfaces, textured fabrics, and layered shades of green were used across lounges, meeting rooms, and shared spaces to create a calm and cohesive interior palette.

The interior experience was designed as a continuation of the outdoor piazza, allowing exterior and interior spaces to flow seamlessly into one another. This continuity strengthens the sense of campus identity, making both buildings feel like part of one unified workplace environment rather than separate structures.

Previous
Previous

Arbor - Tempe

Next
Next

Tenant Improvements