Bond - Suite 210

Phoenix, Arizona, United States
Project completed while working at George Oliver

Floor Plan Development

Floor and Finish Plan

Dimensioned Floor Plan

Reflected Ceiling Plan

Floor plan, dimensioned plan, and reflected ceiling plan illustrating construction documentation development.

Design Elements

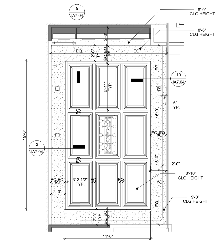
Conference Room Coffered Ceiling

Conference rooms at Bond were designed with custom coffered ceilings to elevate the space and create a refined atmosphere. Trim profiles, molding details, and fabric inlays were carefully selected to add depth and texture while maintaining a consistent design language across all tenant spaces. The ceiling grid was precisely aligned with wall paneling to create a seamless and cohesive architectural composition. Ceiling heights, soffits, and panel proportions were coordinated to integrate lighting and reinforce spatial clarity.

Standardized custom suite entry and conference room door systems were developed to maintain consistent detailing and finishes across all tenant spaces.

Custom Millwork - Selected Examples

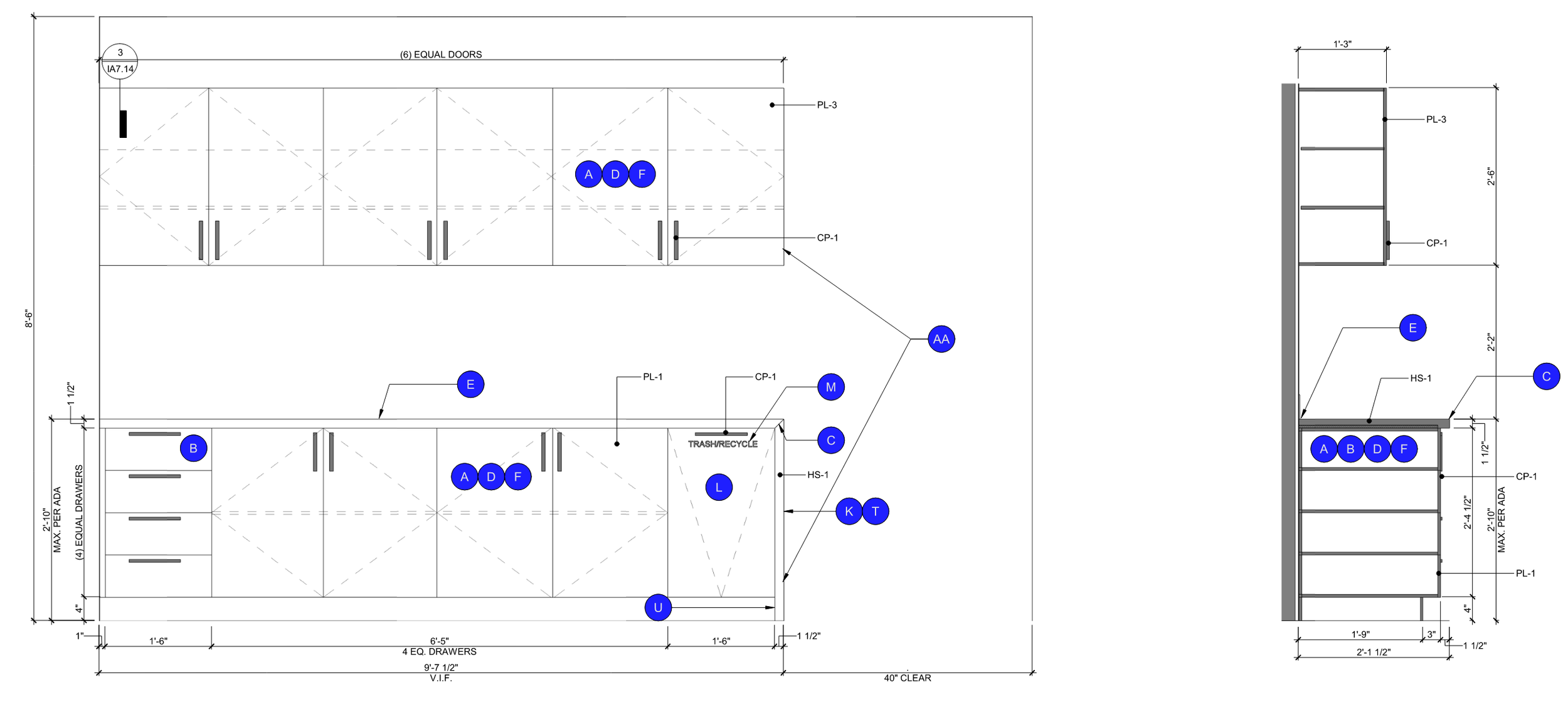
Copy Area Millwork

A standardized copy area millwork system was designed for all tenant spaces at Bond, providing integrated cabinetry, storage, and printer accommodation. While finishes and design language remain consistent, cabinet sizes and layouts adjust from suite to suite to meet varying spatial and functional requirements.

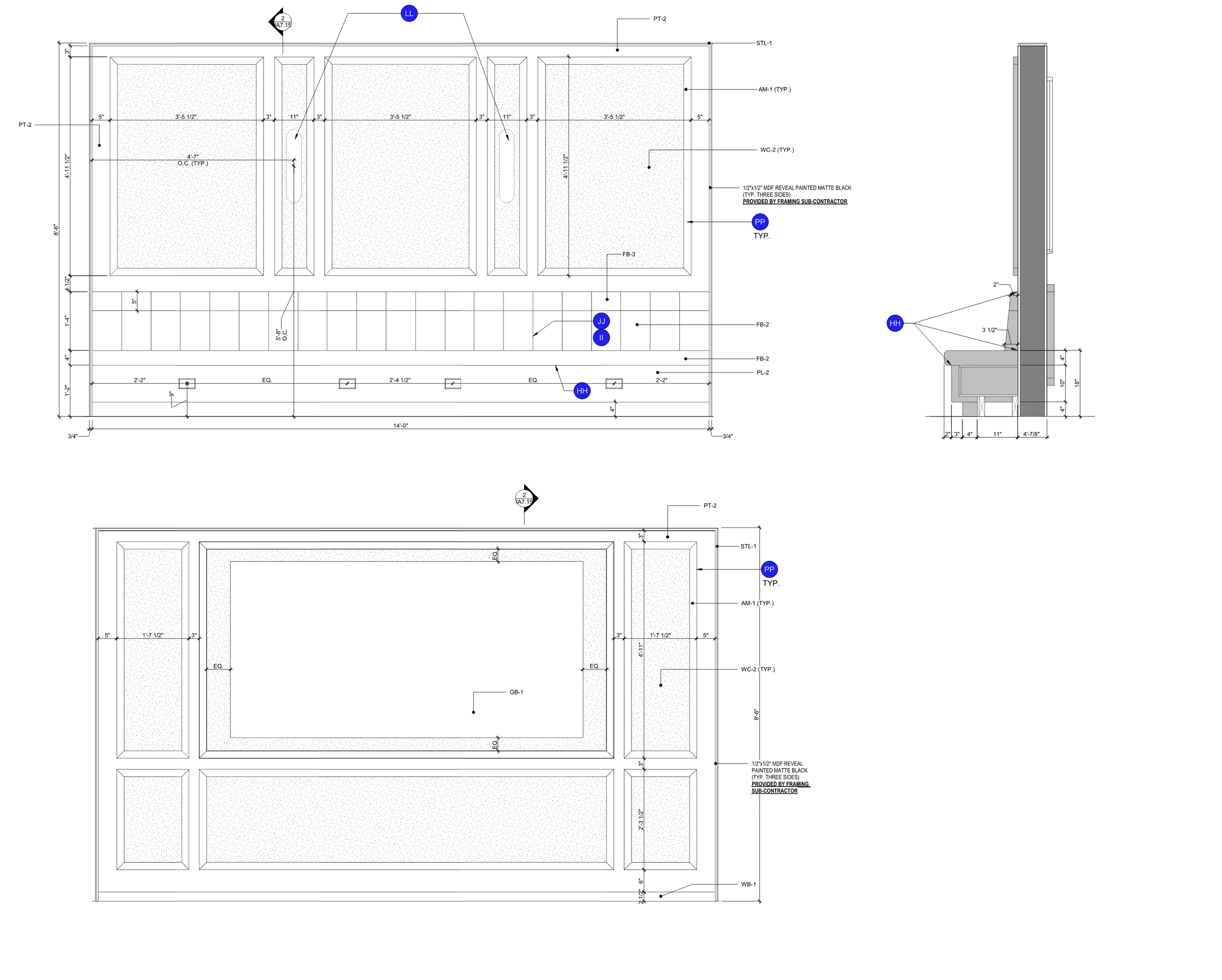
Break Area Banquette

A custom banquette seating and wall panel millwork system was designed for the break area in this tenant space at Bond. The composition combines integrated bench seating, paneled wall treatment, and base detailing to create a comfortable and visually structured gathering space. Trim profiles, panel proportions, and reveal details were carefully coordinated to align with the overall design language of the project.

Dimensions and panel configurations were tailored to the specific suite layout and seating requirements.

K-Brace Feature & Integrated Bookshelf

An existing structural K-brace within the space was preserved as a defining architectural element. Rather than removing or concealing it, a custom millwork system was designed to transform the brace into a functional and visual feature. The intervention creates a framed entry opening into the open workspace while simultaneously integrating shelving to serve as a built-in bookshelf.

This approach maintains structural integrity, enhances spatial definition, and introduces a purposeful design element that anchors the transition into the space.