Suite 375 - Arbor

Scottsdale, Arizona, United States
Project completed while working at George Oliver

Floor Plan Development

Demolition plan & rcp illustrating construction documentation development.

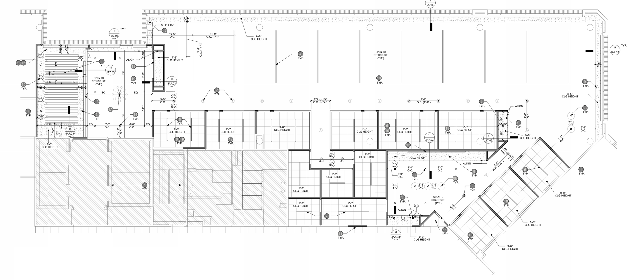
Reflected ceiling plan illustrating construction documentation development.

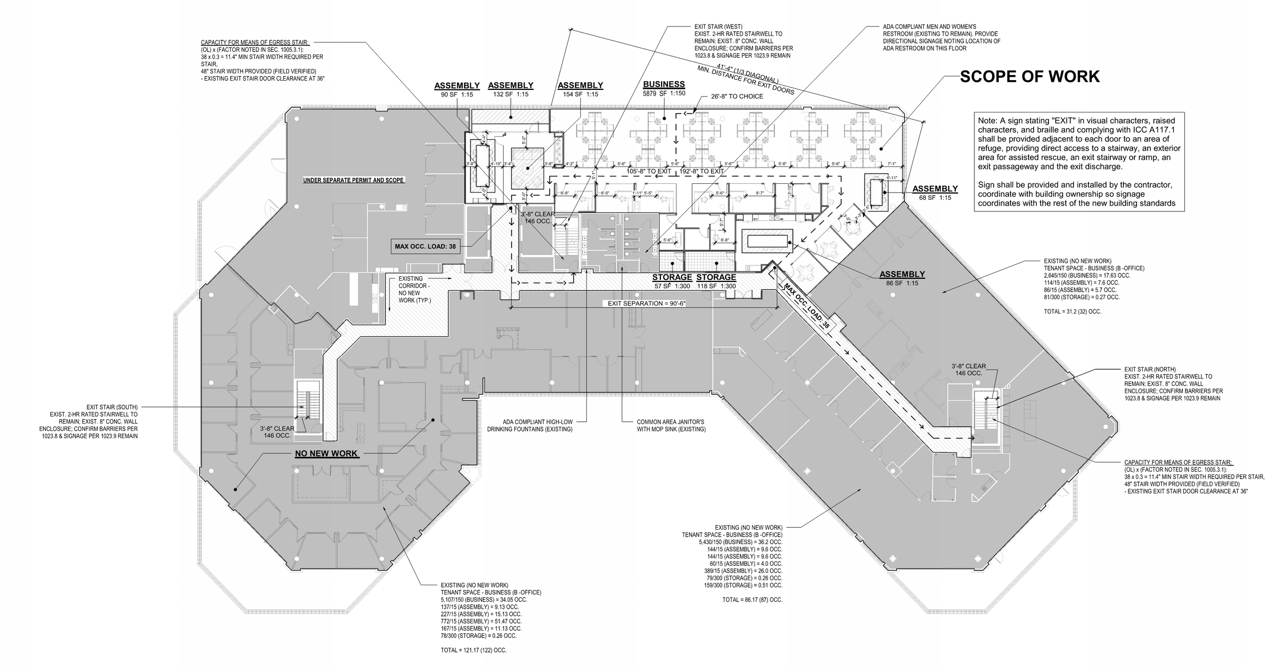
Means of egress plan illustrating life safety and code coordination.

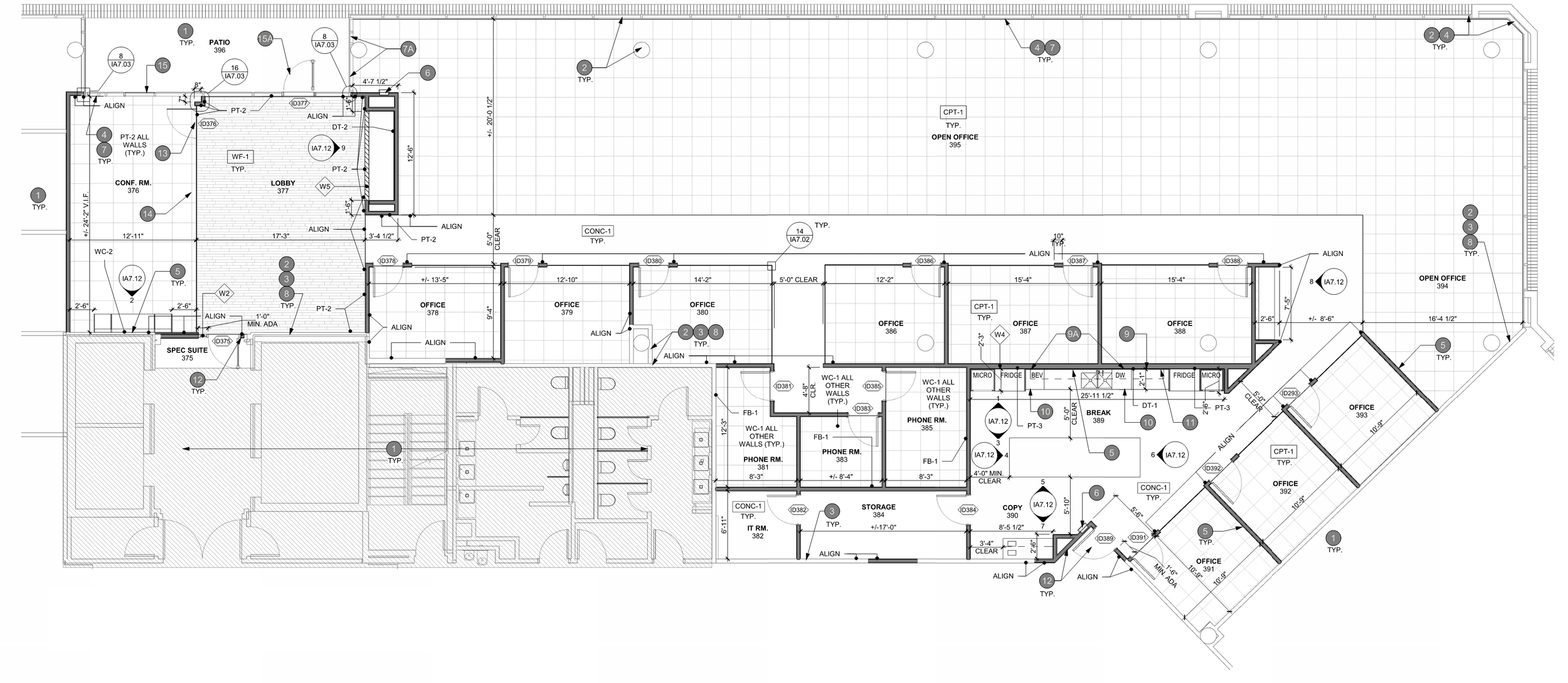
Floor and finish plan illustrating construction documentation development.

Design Elements

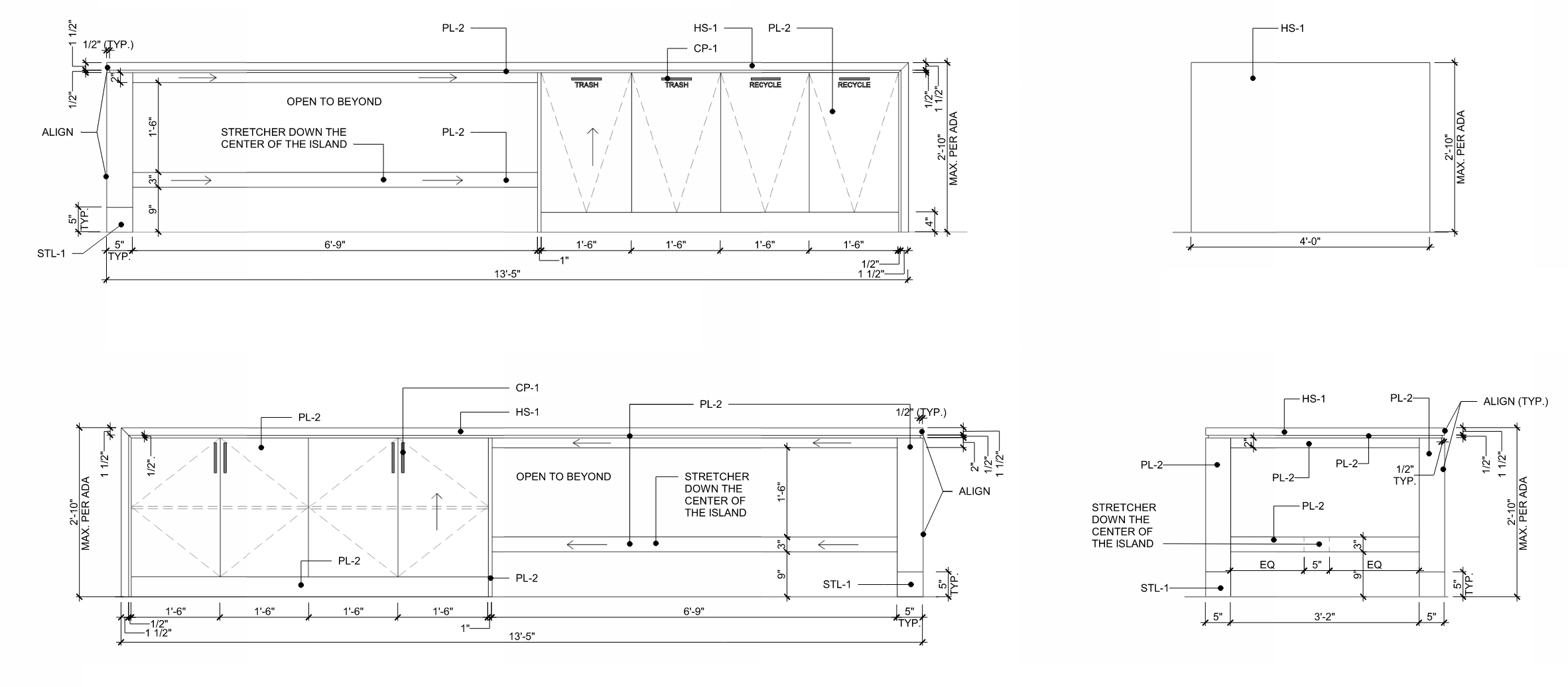
Custom Millwork - Selected Examples

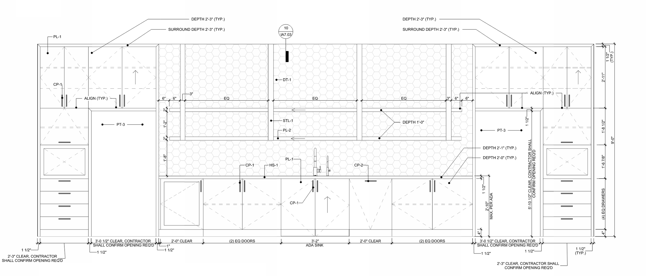
Break Area millwork

Break Area Island

Conference Room Millwork

Lobby, Cactus Wall