Industrious, Coworking Space - Bond

Phoenix, Arizona, United States
Project completed while working at George Oliver

Floor Plan Development

Reflected ceiling plan illustrating construction documentation development.

Floor plan illustrating construction documentation development.

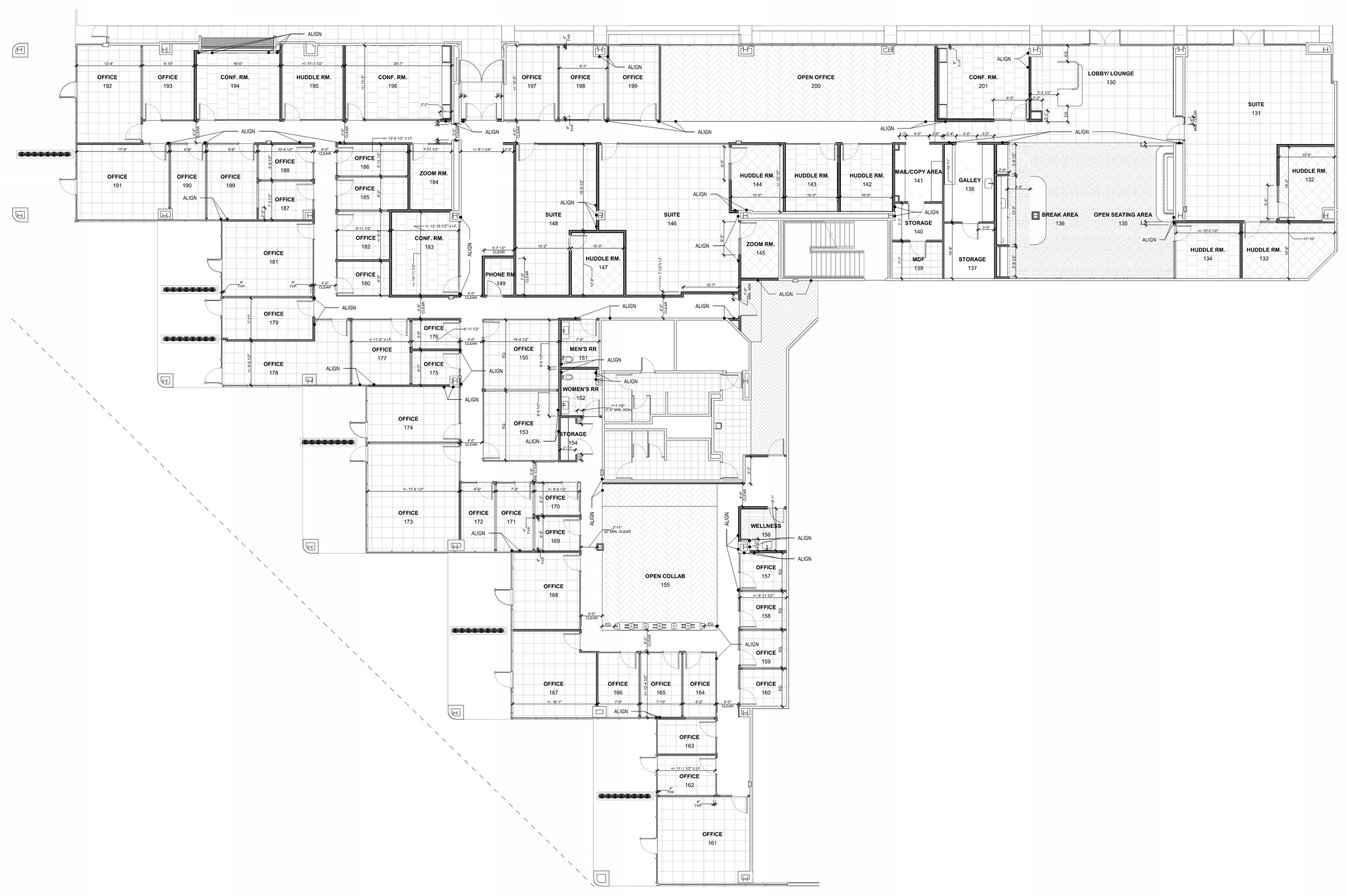
Dimensioned floor plan illustrating construction documentation development.

Demolition plan illustrating construction documentation development.

Design Elements

Standardized Door Systems

The Industrious suites were developed in close coordination with the Industrious team to support flexible leasing of individual offices.
Layouts balance independently leasable offices with shared work and meeting areas, maintaining clear circulation and a cohesive design across varying suite sizes.

Standardized office type layouts

Custom Millwork - Selected Examples

Break Area / Open Work Space

The break area millwork was designed as a continuous, integrated system supporting shared use within the Industrious suites. The millwork includes base cabinetry, integrated appliances, trash and recycling enclosures, shelving, and feature wall elements, organized to maintain a clean and cohesive appearance.

Detailed construction document drawings were developed to coordinate dimensions, materials, clearances, and integration with plumbing, electrical, and architectural finishes.

Custom Bench Millwork

The custom bench was designed as a built-in millwork element supporting shared seating within the open work areas. Its form, detailing, and material expression were developed to align with the architectural language of the adjacent Bond atrium bar, reinforcing visual continuity between spaces in direct communication.