Bond

Phoenix, Arizona, United States
Project completed while working at George Oliver

Bond is a next-generation workplace designed to elevate the office experience through hospitality-inspired design and social connection. Located in Phoenix, Arizona, the project reimagines the traditional office model as a flexible, experience-driven environment that supports productivity, comfort, and community.

Developed under the design direction of George Oliver, Bond was conceived as a destination workplace. A diverse mix of spaces including shared lounges, conference rooms, podcast studios, a large training room, and an underground speakeasy are integrated throughout the building to encourage collaboration, creativity, and engagement. A dedicated wellness area with fitness and locker room facilities further supports daily well-being for tenants.

Bond is a renovation and interior improvement project that transformed an existing commercial office building in Phoenix into a destination workplace. The design reimagines the traditional office through hospitality-inspired amenities that promote productivity, wellbeing, and social connection.

In parallel, tenant improvement permits were developed for flexible office and commercial spaces aligned with the overall design vision. I was involved from schematic design through construction documents and construction administration, working on space planning, detailing, and permit drawings as part of the George Oliver Design team.

Floor Plan Development

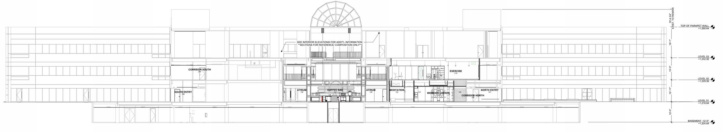
The floor plans were developed from the basement through the third floor, organizing the building around a central vertical circulation core.

The basement was designed as a private speakeasy and boardroom environment, surrounded by parking and service spaces to create a discreet gathering area below grade.

The first floor focused on shared amenities, including the main lobby, training rooms, fitness facilities, locker rooms, meditation and game rooms. A central coffee bar atrium was designed as the social hub and is overlooked by tenant spaces on the first, second, and third floors, promoting visual connection across levels.

The second floor includes meeting rooms, conference spaces, collaboration areas, and tenant spaces for flexible office use.

The third floor was planned with core circulation and additional tenant spaces for future interior build-out.

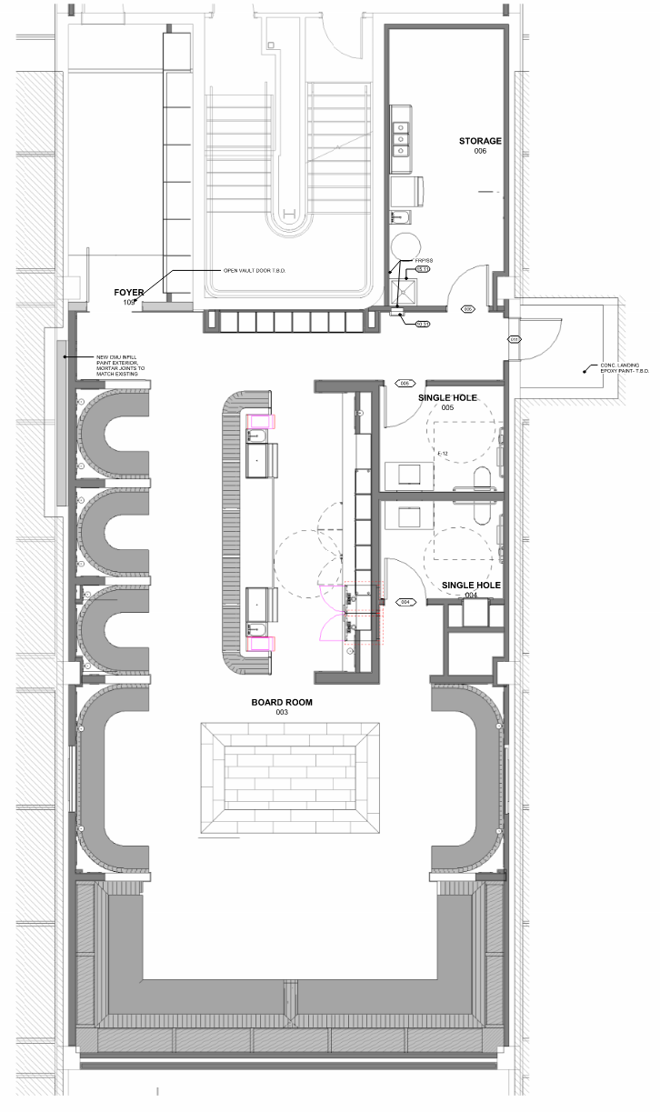
Basement

Level 1

Level 2

Level 3

The central atrium serves as a vibrant, multi-level social hub and visual anchor. Featuring a sculptural steel framework that defines its volume, the space incorporates integrated planters, vertical wall panels, and layered materiality to introduce texture, greenery, and visual depth throughout the interior. Within the atrium, a refined coffee bar activates the ground level and encourages daily interaction, gatherings, and informal collaboration. The design is intentionally open and connected — tenant spaces on the first, second, and third floors overlook the atrium, creating visual connection and a sense of community across all levels.

Atrium Lounge

A large training room on the first floor was designed to accommodate 120–200 people for company-wide gatherings, workshops, and presentations. The space is furnished with a full suite of AV tools, a video wall, a hospitality bar, and a private patio to support events and midday breaks. Positioned adjacent to the central atrium, it serves as a key destination within the building’s amenity sequence.

On the second floor, smaller meeting rooms, Zoom rooms, and podcast spaces were arranged along the perimeter overlooking the training room below. This visual connection across levels reinforces openness while providing a range of environments for focused work, virtual meetings, and collaboration.

Training Room

A 22-person executive boardroom, known as the Jewel Box, was designed as a premium meeting space for leadership discussions, client presentations, and high-level gatherings. The space features integrated AV tools and custom millwork that we designed, creating a functional and refined environment tailored for professional use. Large glazing and carefully positioned openings allow the room to overlook the central atrium, establishing a visual connection to the core of the building while maintaining a sense of privacy.

The design focuses on clean lines, warm materials, and controlled lighting to create an intimate yet sophisticated atmosphere. Its placement within the conference suite makes it a key destination for important meetings, supporting the overall vision of Bond as a workplace that encourages interaction, experience, and community.

Jewel Box

The Vault was designed as an underground speakeasy-style lounge and private meeting space for informal gatherings, social events, and after-hours use. Custom millwork that we designed, integrated lighting, and a darker material palette create a warm and intimate interior atmosphere. In contrast to the openness of the main amenity spaces, the Vault is intentionally enclosed and concealed, reinforcing a sense of privacy and exclusivity.

The entrance is deliberately understated, using a simple utilitarian door that gives little indication of what lies beyond. This moment of transition—from an unassuming threshold into a refined lounge—creates a sense of discovery and surprise. Its below-grade location establishes a distinct destination within the building, supporting the project’s vision of offering diverse environments for collaboration, experience, and community.

The Vault

Next
Next

Arbor - Tempe